そばな高原鉄道車輌製作運転用ボギー車>台車の製作 急行 home  行 き

車体の製作

運転用ボギー車

車体の設計<運転席の高さ>

製作する車体の特徴はトンネル通過のために低い位置に運転席を設けてあることで
     運転席のレール面からの高さ+運転者の座高 <110 〔cm〕
が設計に際しての目標値です。

運転席の高さは低いほど走行安定性が増しますが,座席をあまり低くすると無理な姿勢になって運転がしにくくなります。
最低でも20cmは必要と思います。そこで足置き板をレール面ギリギリの5cmまで下げることによって座席の位置を低くする方法をとりました。

一方,楽な運転には姿勢だけではなく動作に制約を受けない条件も必要で,車体を長くして身体を前後に動かし易くし,足の置き場所も広くとりました。(トンネル通過時に,座高の高い人は足を引けば頭を下げやすくなります。)

(注) 車体の外側に突き出している足置き板は地面スレスレです。これを逆手にとって,橇のようなこの板を脱線の際のダメージ軽減に生かせないか検討しています。


運転用車輌<車体木部>

板材のカット  *1

板材は側板と妻板がラジアタパイン集成材,床板と屋根はラワン,椅子の座板はケヤキ,椅子の背は2×4(SPF)材にしました。
(注)合板は「面」の製作には優れていますが切断面の処理や接合部の整形,小口のネジどめ,塗装などに限界があります。
一方,「立体」の製作には集成材が適しており,精度のよい加工が出来 ,角にアールをとったり彫り込みを入れたり,塗装しても合板の欠点の「板張り」感がでません。

曲面部分を削り出す材料は手持ちの板材の中から柔らかくて均質な性質のラワンと2×4材(SPF中の適する樹種)としました。

組立は木工用接着剤とコーススレッドなので,正確で切り口が甘くならないカットにしないと接合部が上手く出来ません。
板材の接合はカットで出来栄えが左右され,カットが良ければ組立ても容易になります。

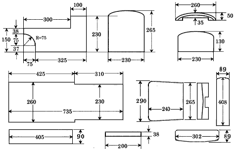
板材のサイズ(自作のためのメモなので分かりにくいですが,ご参考まで。)

車体の組立

カット・整形した板材は木工用接着剤を付け,コーススレッドを捻じ込んで組み立てます。 接合部は仕上がりを綺麗にするために木栓用の穴(径9mm)とネジの下穴を開け,コーススレッドの頭は木栓を詰めて隠します。

(写真右)接合部に接着剤を塗りコーススレッドで固定した後,ねじ込んだ穴にも接着剤を入れて径10mmの丸棒を打ち込みます。棒の板面から出た部分は極細の刃の鋸でカットします。

背板 ・・・椅子の背に取り付けたT字型の板(腰板)は必要最小限の大きさですが運転姿勢を安定させる上ではかなり有効です。
上体を前後左右に傾ける際のバランスは足だけに頼らず腰でも支えると上体の安定感がずっと良くなります。
この腰でも支持するという考え方は身体の重心が車幅の中央(=軌間の中央)に無意識に保持されるので安全な走行にも関係すると思います。


(写真左) T字型の背板を付けて枠部分の組立が完了した車体です。
あとは床板を取り付ければ木部は完成です。座板と後部の屋根は「蓋」として載せるだけです。

完成した車体<木部>

床板・・・台車とブレーキ関連部品を直接取り付ける構造なので,十分な強度が得られる様にやや厚手のラワン材にしました。

屋根座板・・・メンテナンスと物入れに使えるように,嵌め込むだけで取り外しが出来ます。

(写真)角にアールを付け,サンドペーパーがけも済んだ塗装前の車体です。 樹種により木地はかなり異なります。

余談 製作で気付いた事(その1) この車輌は「走る小さな椅子」なので安定(=安心)して座れること が必要だと思いました。そこで座板の高さや大きさを検討するために自宅の階段に座って動き易さを調べていたところ,階段上段の踏み板が腰に当たったことから「背板」の有用性に気付きました。
設計方針を,「良い椅子」の固定観念=「座り心地の良い椅子」から,背板によって「腰を支える椅子」に変えました。
背板を低く,垂直から更に前傾させ,水平な板も湾曲させたのは腰のバンドの位置に当てる目的をもっています。
身体に合う大きさと形状を調べながら作りましたので,足を浮かせても背板(=腰板)で身体が支えられる感じになりました。

気付いた事(その2) 上の写真には板をカットしたものの気にくわず使わなかった前端の妻板とそれに付随する足置き板も写っています。板ばかりで作った箱型は遊具(玩具)に見えてしまうからです。この部分を鉄のフラットバー製に変え,足置き板をボルト留めに作り直すとチョッピリ鉄道(模型)の雰囲気が出てきました。
・・・考えてみると当たり前の話です。実際の車輌ならばそういう風に作られている筈ですから・・・。<玩具>と<鉄道模型>とはどこか違うところがあると感じていますが,ヒントはこの辺にあるのかも知れません。

製作費  ラジアタパイン集成材(1820×250×15) @1,580円×2枚,丸棒(長さ100mm,径10mm) 84円  その他(手持ちのSPF材,ラワン材 ,ケヤキ板,購入すると3,000円程度)  ネジ類 約200円
車体木部製作費/合計 約 6,400円

 運転用ボギー車menu  車体の製作

台車の製作 ブレーキの構造  表示中 塗装/組立